Titelbild Mittergrathütten Kühtai

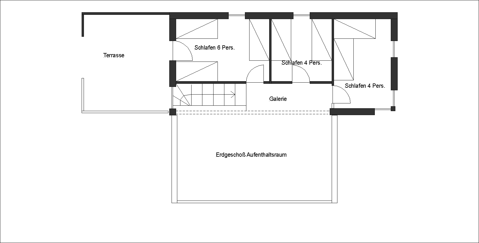
Grundriss Obergeschoß Hemerwaldalm